


| 地 址: | 福州市高新區(qū)高新大道1號中海SOHO43號樓1223-1226單元 |
| 郵 編: | 350005 |
| 電 話: | 400-863-0591(24小時熱線) |
| 網 址: | www.kankanmm.com.cn |
| 郵 箱: | sales@fzhuaxing.com |
| ? | |
| ? | |



復卷機
噴碼機的配套設備復卷機。
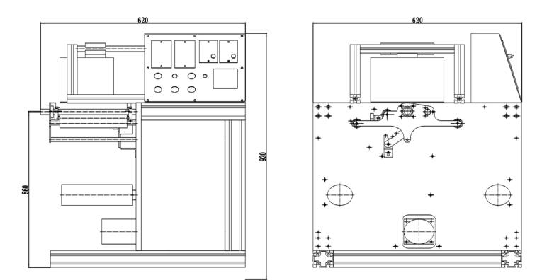
一、 外型、尺寸
二、 電源
本機采用單相電源,AC220V±5%;3A。
三、 穿料示意圖
四、 面板說明
1、主速度:控制打印棍的轉速,可直接旋轉調速器上的旋鈕調速打印速度的快慢,順時
針加速,逆時針減速;
2、收料速度:控制收料軸和放料軸的轉速,可直接旋轉調速器上的旋鈕調速打印速度的
快慢,順時針加速,逆時針減速;此速度正常工作時設定成大 ;
3、收料張力:控制收料軸收卷的力度,正??梢暡牧鲜站頃r松緊由小到大調整;主要控
制材料在收料側材料是繃緊狀態(tài);
4、放料張力:控制收料軸收卷的力度,正常可視材料收卷時松緊由小到大調整;主要控
制材料在收料側材料是繃緊狀態(tài);
注:收料張力和放料張力應該配合起來調整,當收料卷小于放料卷時,這時收料張
力應該大于放料張力,當收卷和放卷差不多大小時,這時兩個張力值應該是一樣大
小;當收料卷大于放料卷時,這時收料張力應該小于放料張力,張力的大小應該根
據收卷的整齊度,材料的寬度適當調整;張力不能過大,有可能會造成收放料電機
堵轉故障;
5、電源開關:控制本機的總電源;
6、保險絲:3A;
7、打印開關:在正常運轉的情況下控制打印機是否打?。?br/>8、計數開關:在正常運轉的情況下控制計數器是否計數;
9、啟動:按下后放開,打印棍按照主速度開始運轉,當打印機故障時,只有按住此按鈕
不放,打印棍才會按照主速度運轉,放開時就會停止;
10、 停止:按下后,打印棍從運轉狀態(tài)減速停止;
11、 正反轉:控制打印棍的旋轉方向;